| 一、概述 |
本产品适用于40MPa 双线终端式干油集中润滑系统中,用于控制润滑泵自动运转,向系统Ⅰ管线供送润滑脂,给油完成后自动换向向系统Ⅱ管线供送润滑脂,完成一个润滑周期供脂后自动停止。
GDK02型电气控制箱为有监控控制结构,具有持续工作和自动工作二种工作状态,通过箱面的转换开关来切换。持续工作状态,当润滑泵启动后系统周而复始地持续向系统两条主管线供送润滑脂。自动工作状态,当与主机联锁信号接通后,润滑泵按系统设定的间隔时间定时向系统供送润滑脂,完成一个润滑周期后自动停止。
|
|
|
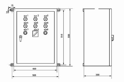
| 二、外形尺寸 |
|
| 三、标牌符号及文字 |
序号 |
标牌文字 |
序号 |
标牌文字 |
序号 |
标牌文字 |
1 |
工作准备指示 |
4 |
监控时间超过 |
7 |
警报试响 |
2 |
线I工作状态 |
5 |
超负载动转 |
8 |
持续-停止-自动 |
3 |
线II工作状态 |
6 |
贮油筒空 |
9 |
消除警报 |
|
| 四、GDK-02 电气控制箱外部接线图 |
|
五、使用说明
1、适用主电源AC380V、50HZ。
2、适用环境温度-10℃~40℃,湿度90%。
3、周围环境无导电的介质(气体、液体)。
4、垂直安装,其倾斜度不大于5°。 |
|