产品导航
 
KL型空气冷却器(0.63MPa)

一、使用条件
  KL型空气冷却器适用于水源不足或水质较差的现场,它利用内部流动的载冷剂通过冷却器表面吸收空气中的热量,使空气降温;也可以利用空气冷却内部工作介质,使工作介质降到要求的温度。
  空气冷却器广泛应用于石油化工、冶金、矿山、电力、轻工机械等行业的液压润滑系统及冷却换热系统。空气冷却器采用空气为冷却介质,无污染,减少水的消耗,具有一般冷却器所没有的优点。

二、技术参数

参数
型号
换热面积m2
工作压力MPa
工作温度℃
压力降MPa
换热系数W/m2.K
通径mm
KL-100
100
0.63
≤100
≤0.01
50
95
KL-145
145
KL-230
230
70
KL-288
288
KL-350
350
KL-410
410
80
KL-454
454
KL-500
500
三、型号说明
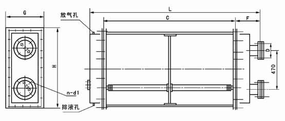
四、外形尺寸
浮头式空气冷却器
型号
A
B
C
D
E
b
f
G
H
L
L1
L2
n-d1
n-d2
d
KL-100
1400
170
185
320
800
1680
4-Φ18
KL-145
2000
170
185
320
800
2280
4-Φ18
KL-230
150
250
1120
140
965
540
350
490
1358
1620
450
600
4-Φ19
65
KL-288
150
250
1400
140
825
450
350
490
1358
1850
450
600
4-Φ19
4-Φ14
65
KL-350
150
250
1700
140
95
600
350
490
1358
2150
450
600
4-Φ19
4-Φ14
65
KL-410
150
250
2025
150
1135
740
350
490
1358
2475
450
600
4-Φ19
4-Φ14
65
KL-454
150
250
2245
150
1245
850
350
490
1358
2685
450
600
4-Φ18
4-Φ14
KL-500
150
250
2465
150
1355
960
350
490
1358
2915
450
600
4-Φ18
4-Φ14
60