一、概述
DXZ系列电动干油站适用于润滑频率低,配管长度在100米以下,润滑点约在300点以下,公称压力为10MPa的双线式干油集中润滑系统中,作为供送润滑剂的输送装置。对于无自动控制要求的重型,矿山小型设备中的干油集中润滑系统尤为适宜。
该系列电动干油站是一种由电动机直接驱动,经减速带动压油柱塞泵元件,而排出润滑脂的电动干油站。一般与双线给油器配用,由安装在系统管路末端的压力 操作阀来控制电磁阀的换向,实现交替向系统两供油主管供油的功能。
|
|
|
二、技术参数
型 号 |
公称压力 |
给油能力 |
贮油器容积 |
电机功率 |
电磁铁型号 |
重 量 |
MPa |
mL/min |
L |
kW |
适用电源 |
kg |
DXZ-100 |
10 |
100 |
50 |
0.55 |
FJ1-4.5
50Hz~220V
|
148 |
DXZ-315 |
315 |
75 |
0.75 |
192 |
DXZ-630 |
630 |
120 |
1.1 |
235 |
使用介质为锥入度250~350(25℃,150g)1/10mm的润滑脂(NLGI0#-2#)。 |
| |
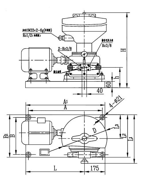
| 三、 外形尺寸 |
|
| 型 号 |
A |
A1 |
B |
B1 |
h |
D |
L≈ |
L1≈ |
L2 |
L3 |
H≈ |
最高 |
最低 |
DXZ-100 |
460 |
510 |
300 |
350 |
151 |
408 |
406 |
414 |
368 |
200 |
1330 |
925 |
DXZ-315 |
550 |
600 |
315 |
365 |
167 |
474 |
434 |
392 |
210 |
1770 |
1165 |
DXZ-630 |
508 |
489 |
1820 |
1215 |
|
 |
| |
| 四、型号标注说明 |
 |
| |
| 五、使用说明 |
1、该系列电动干油站应安装在环境温度合适,灰尘少,便于调整、检查、维修和拆洗及补脂方便的地方。
2、该系列电动干油站应尽可能布置在系统的中心位置,缩短系统配管长度,保持最低压力降,使泵能产生足以克服润滑点背压的压力。
3、使用前必须先向干油站减速箱体内加入50#机械油至油标规定液面。
4、向贮油器内补脂必须使用DJB-200型电动加油泵从贮油器的加油器的加油口加入,在贮油器内无润滑脂有情况下严禁启动电动泵运转。
5、电磁换向阀上留有连接接口为Rc3/8的自己压力表接口,如不需要时可用Rc3/8螺塞堵死。
6、电磁换向阀上的调压阀,可以在0~10MPa范围内任意调节,在使用时不允许超过泵的公称压力(10MPa)。
7、干油站初用二个月必须拆下电磁阀二端电磁铁检查接合面处有否润滑从顶杆密封处渗漏出,如有渗漏应及时更换密封件以免 烧坏电磁铁,以后注意,经常检查。
8、该系列电动干油站为室内安装型,在室外或环境恶劣的场合使用时,必须采取防护措施。 |
| |